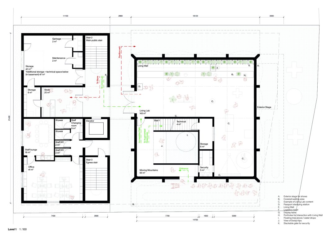
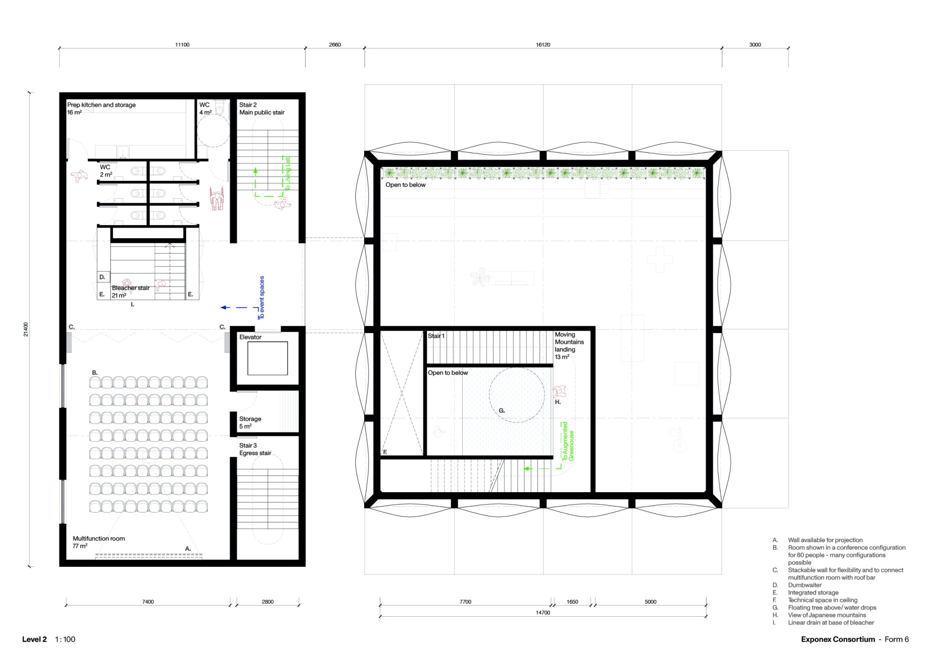
Swiss Pavilion - Design
EXPO 2025

Swiss Pavilion - Design

Presence Switzerland
Osaka, Japan

Gallery